フロアーハッチ(床点検口)

仕上材に合わせて最適な蓋高さとした、低価格のステンレス製 床点検口です。

  • ステンレス製 一般型 フロアーハッチ(落し込み把手)
    モルタル充填用(屋内用・屋内外用) MSXO-M
    樹脂タイル貼物用(屋内用) MSXO-P

開閉が簡単な落し込み把手です。

施工時の充填作業が行いやすく、使用時のタイル破損を防ぐ把手位置になっています。
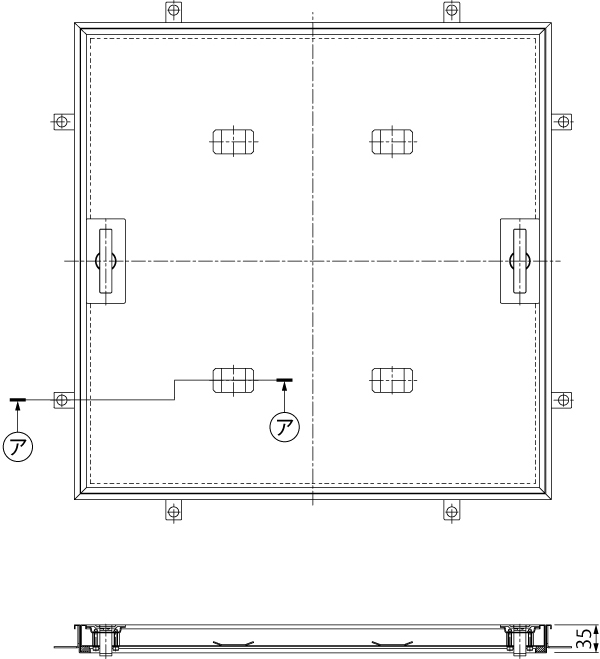
把手部
把手部 平面詳細図

モルタル充填用 MSXO-M
製品写真


平面図
樹脂タイル貼物用 MSXO-P
製品写真


平面図
※モルタル充填用と樹脂タイル貼物用は受枠が異なりますのでご注意ください。

仕上げ材の納まりについて

モルタル充填用は、充填深さ26mm(モルタル止め5mmを含む)で、 タイル15mm+貼りモルタル3mm+下地モルタル8mmまでの仕上げが可能です。
樹脂タイル貼物用は、貼り深さ3.5mmで、3.5mmまでのビニル床タイル、ビニル床シートの仕上げが可能です。
モルタル充填用
樹脂タイル貼物用

歩行を妨げることのない落し込み把手式です。

モルタル充填用 MSXO-M
納まり図
樹脂タイル貼物用 MSXO-P
納まり図

製品詳細

仕上材 本体材質 目地材質 製品符号 製品写真 サイズ 備考
モルタル充填用 ステンレス製 ステンレス目地 MSXO-M MSXO-M 450,600 落し込み把手
樹脂タイル貼物用 ステンレス製 ステンレス目地 MSXO-P MSXO-P 450,600 落し込み把手