ホーム
ワンポイント情報
フロアーハッチ
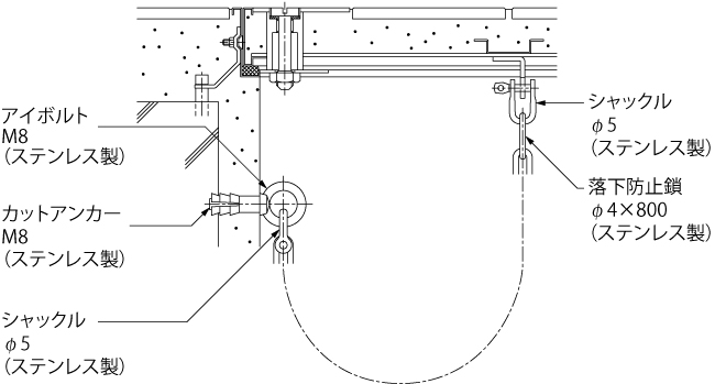
フロアーハッチ MSEM-M 落下防止鎖付の部品構成について
製品分類:フロアーハッチ
分類番号:P190107
更新日:―
MSEM-M 落下防止鎖付の部品構成を下図に示します。