ホーム
ワンポイント情報
クリーンピット・ラインピット
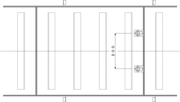
タイル接着剤貼用 ステンレス目地 配線・配管ピット蓋 TC-S 450×600、500×600の把手位置について
製品分類:ラインピット
分類番号:P190225
更新日:―
タイル接着剤貼用 ステンレス目地 配線・配管ピット蓋 TC-S 450×600、500×600の把手は2ヶ所/枚付で、把手のピッチは200mmです。