ホーム
ワンポイント情報
EXジョイント
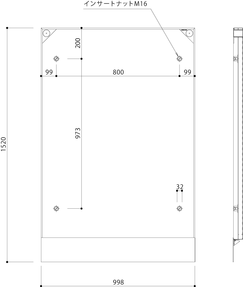
免震エキスパンションジョイント MX77VTEF、MX77VTHFの本体パネルインサートナット位置について
製品分類:EXジョイント
分類番号:P181030
更新日:―
免震エキスパンションジョイント MX77VTEF、MX77VTHFのインサートナットの位置を下図に示します。
充填材のタイル割、石割等の関係で、位置変更もできますので、その際はご指示ください。