ホーム
ワンポイント情報
EXジョイント
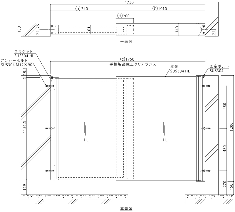
EXジョイント免震構造建築用 MX-TEB-Kの寸法について
製品分類:EXジョイント
分類番号:P191224
更新日:2020.06.02
EXジョイント免震構造建築用 MX-TEB-Kは、可動量により寸法aおよび寸法bを可動量の増減分変動させます。寸法dは変動しません。なお、最大寸法は±800mm可動となります。
可動量[o]
寸法a[o]
寸法b[o]
寸法c[o]
寸法d[o]
±600
740
1010
1750
200
±700
840
1110
1950
±800
940
1210
2150
MX-TEB-K-60175(±600o可動)