ホーム
ワンポイント情報
環境配慮関連製品
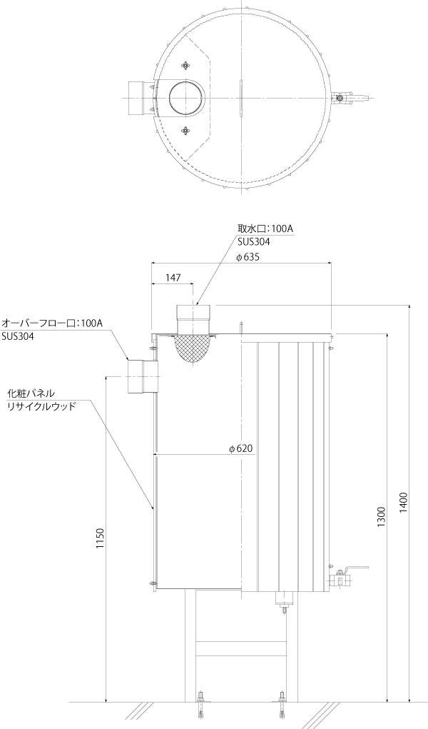
リサイクルウッドタイプ雨ボトル AB200EWの取水口とオーバーフロー口を100Aにした仕様について
製品分類:環境配慮関連製品
分類番号:P190808
更新日:―
リサイクルウッドタイプ雨ボトル AB200EWの取水口とオーバーフロー口の規格品は50Aですが、サイズを変える事ができます。
100Aにした仕様を下記に示します。
※バスケットはAB500EW用を使用します。
※オーバーフロー口部分の化粧パネル(リサイクルウッド)の切欠を100A用に大きくしています。
※製品ページはこちら:
AB-EW