ホーム
ワンポイント情報
車止め
Uシリーズの納まりについて
製品分類:車止め
分類番号:P010111
更新日:―
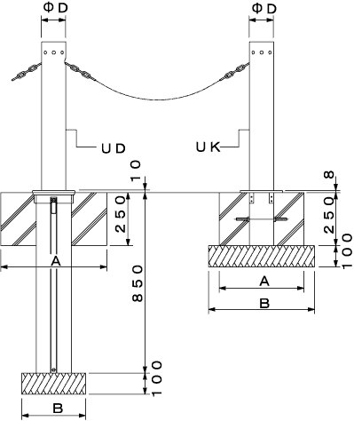
上下式車止めUD、固定式車止めUKの納まり寸法は下記のとおりです。
製品符号
φD
A
B
UD
φ48.6
□300
□300
φ76.3
□400
□300
φ114.3
□500
□400
UK
φ48.6
□300
□400
φ76.3
□300
□400
φ114.3
□300
□400