ホーム
ワンポイント情報
U字溝用スリットみぞ蓋
ボーダースリット 枠端部の呼称について
製品分類:U字溝用スリットみぞ蓋
分類番号:P070111
更新日:2025.12.03
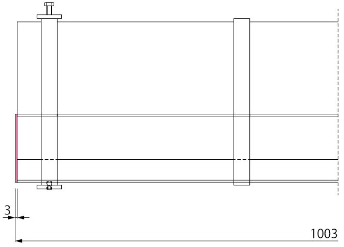
ボーダースリットの枠端部の呼称は下図のようにスリット部を下側にした時、エンドプレートの位置により下表の呼称とします。
エンドプレートは、外当てを標準とします。(定尺の蓋を使用するため)
呼称
エンドプレートの位置
左外エンド
エンドプレートが左側で外側に当てる。L=1003
右外エンド
エンドプレートが右側で外側に当てる。L=1003
左外エンド
右外エンド
呼称
エンドプレートの位置
左内エンド
エンドプレートが左側で内側に当てる。L=1000
右内エンド
エンドプレートが右側で内側に当てる。L=1000
左内エンド
右内エンド