ホーム
ワンポイント情報
鋳鉄製みぞ蓋
鋳鉄製みぞ蓋(鋳鉄製 格子型 集水桝用 受枠付)GCA・GCBについて
製品分類:鋳鉄製みぞ蓋
分類番号:P240906
更新日:―
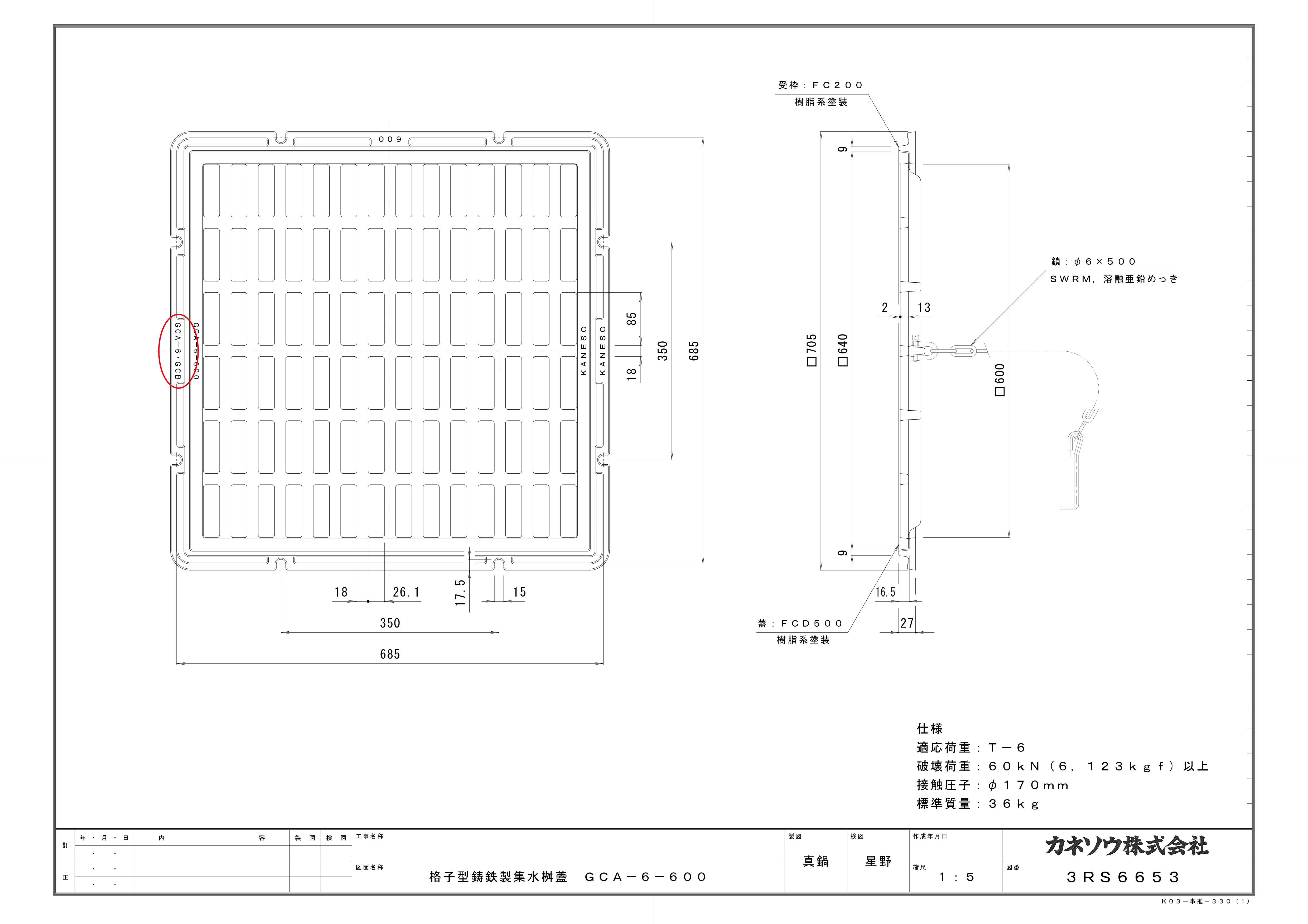
T-6用のGCA-6とT-2用のGCBの受枠は共通です。
よって、T-2用のGCBをT-6用のGCA-6に変更する場合は 枠はそのままで蓋の交換だけで可能です。
参考にGCA-6-600とGCB-600の図面を添付いたします。
T-20用のGCA-Sは専用受枠です。
GCA-6
GCB
※製品ページはこちら:
GCA-6
・
GCB