ホーム
ワンポイント情報
ステンレス製グレーチング
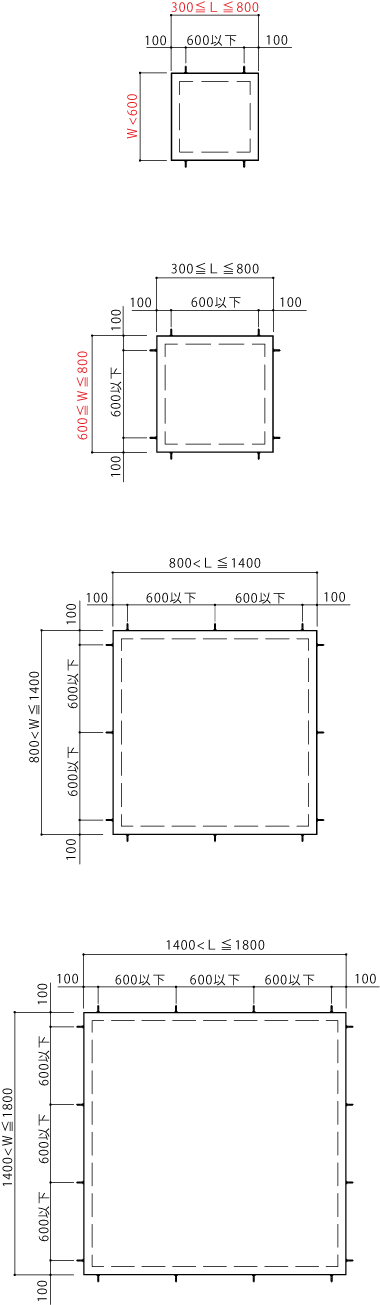
受枠L-SUSの四方枠アンカー方向と数量について
製品分類:ステンレス製グレーチング
分類番号:P210121
更新日:―
L-SUSの四方枠のアンカー取付位置を下図に示します。