ホーム
ワンポイント情報
グリース阻集器
グリース阻集器用サポートアングルについて
製品分類:グリース阻集器
分類番号:P041214
更新日:―
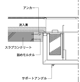
床吊型のグリース阻集器を設置する場合、設置場所のスラブコンクリートには、補強筋等を行い十分な強度を有することが必要になります。
サポートアングルを使用する場合は、前述の処置を行った上で、補助的に使用します。
使用の際は、2本以上使用して下さい。