カネソウのスリットみぞ蓋シリーズ情報はこちら
カラー舗装用みぞ蓋
タイル用 充填深さ40mm 集水桝用 目地すきま6mm/11mm ステンレス目地付鋳鉄製蓋
適用荷重:T-2
カラー舗装用みぞ蓋の強度基準はこちらをご覧ください。
製品符号:SEW-2
目地すきま6mm(P=10)/ 目地すきま11mm(P=15)
製品写真

※写真のタイルは含まれません。
製品の特徴
- 舗装材を充填できる鋳鉄製、ステンレス目地の集水桝用排水みぞ蓋です。
- スリット排水目地のすきまは6mm(P=10)と11mm(P=15)の2タイプで、排水口を意識せずに通行できます。
- 目地部に凹凸を施した滑り止め模様付も製作できます。
- 強度はT-2用で、総重量2,000kgfまでの車両の乗り入れが可能です。
- 建物内、建物敷地内、公園敷地内、車道以外で車両の乗り入れる可能性のある場所に設置できます。
※車両が頻繁に通行する場所や、フォークリフト等の特殊車両が通行する場所には適しません。
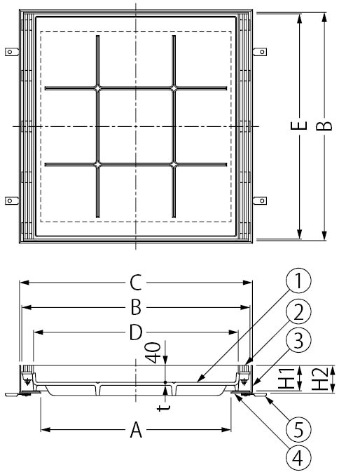
製品図面

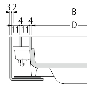
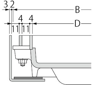
開口寸法
目地すきま6mm(P=10)

※図面の受枠はクッション付です。
目地すきま11mm(P=15)

※図面の受枠はクッション付です。
部品構成
- 蓋
材質:FC200
処理:樹脂系塗装
- 目地
材質:SUS304
- 受枠
材質:SUS304
- クッション
材質:クロロプレンゴム
- アンカー
材質:SECC
注文・発注情報
- 受枠には、クッション付とクッションなしの2タイプがあります。
<例>
クッション付→SEW-2-450(P=15)-b
クッションなし→SEW-2-450(P=15)-a
- ご注文の際は、目地ピッチをご指示ください。
<例>
SEW-2-450 P=10
SEW-2-450 P=15
寸法表<単位:mm>
| 桝内径 |
呼称 |
A |
B |
C |
D |
E |
H1 |
H2 |
h |
t |
開口面積(mm2) |
| クッション付 |
クッションなし |
P=10 |
P=15 |
| 300×300 |
300 |
300 |
390 |
400 |
334 |
382 |
60 |
66 |
63 |
40 |
6 |
9,252 |
11,308 |
| 450×450 |
450 |
450 |
540 |
550 |
484 |
532 |
60 |
66 |
63 |
40 |
7 |
14,652 |
17,908 |
| 600×600 |
600 |
600 |
690 |
700 |
634 |
682 |
60 |
66 |
63 |
40 |
7 |
20,052 |
24,508 |
質量
| 呼称 |
蓋質量(kg) |
舗装材充填時の 蓋質量(約・kg) |
受枠質量(kg) |
| クッション付 |
クッションなし |
| 300 |
13 |
25 |
4.3 |
4 |
| 450 |
25 |
49 |
6.4 |
6 |
| 600 |
40 |
80 |
7.5 |
7 |