



| 呼称 | a | b | c | h | k | m |
|---|---|---|---|---|---|---|
| 75 | 200 | 125 | 50 | 31 | 59 | 94 |
| 100 | 230 | 150 | 50 | 44 | 71 | 106 |
| 125 | 260 | 175 | 50 | 56 | 84 | 118 |
| 呼称 | n | P | D1 | D2 | D3 |
|---|---|---|---|---|---|
| 75 | 159 | 130 | 130 | 30 | 13 |
| 100 | 186 | 160 | 160 | 30 | 13 |
| 125 | 214 | 190 | 190 | 30 | 13 |
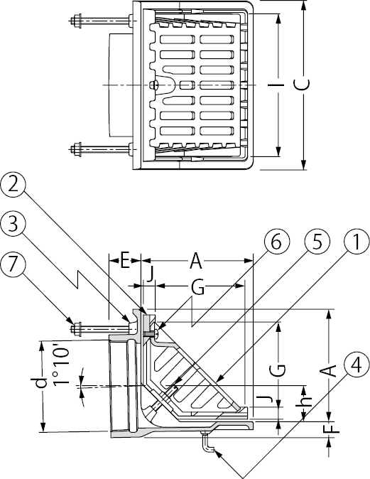
| 呼称 | A | C | ねじ径d | E | F | G | h | I | J |
|---|---|---|---|---|---|---|---|---|---|
| 75 | 115 | 180 | Rc3 | 35 | 20 | 87 | 31 | 147 | 15 |
| 100 | 140 | 210 | Rc4 | 40 | 20 | 112 | 44 | 177 | 15 |
| 125 | 165 | 240 | Rc5 | 44 | 22 | 136 | 56 | 205 | 15 |
| 部番 | 品名 | サイズ75 | サイズ100 | サイズ125 | 数量 | 備考 |
|---|---|---|---|---|---|---|
| D | ボルト | M8×50 | M8×50 | M8×50 | 2 | 六角ナット付 |
| E | 丸小ねじ | M6×12 | M6×12 | M6×12 | 1 | − |
| F | ボルト | M8×l※ | M8×l※ | M8×l※ | 2 | 六角ナット・座金付 |
| ALCの厚さ | l |
|---|---|
| 100 | 80 |
| 125 | 105 |
| 150 | 130 |